合肥泓一生活館酒店
| 項目名稱 | 合肥泓一生活館酒店 | 行業屬性 | 酒店/餐飲/會所 |
| 項目地址 | 合肥廬陽區元一美邦國際 | 項目造價 | 28.5萬 |
| 主關鍵詞 |
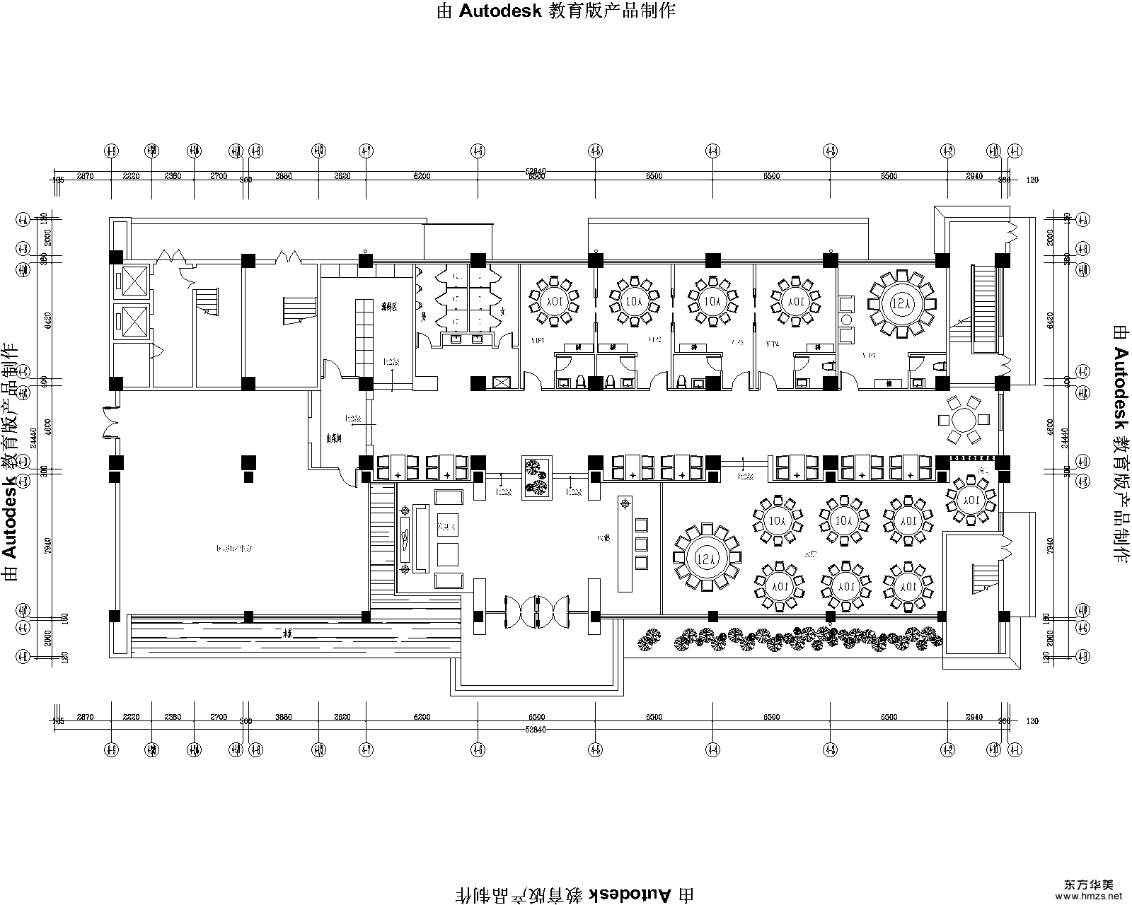
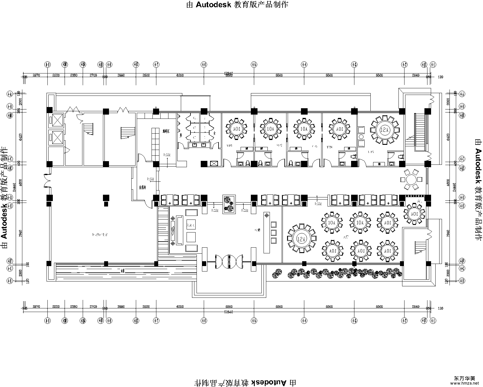
▄原建筑結構分析: 本案例是集棋牌與餐飲為一體的場所 根據項目原先的結構進行改造
▄設計需求: 本項目屬于簡餐加棋牌室的二次裝修改造工程,拆除、 石膏板隔墻、石膏板吊頂,電路改造、水路改造。根據項目原先的結構,進行改造,空間結構基本不變。
▄設計風格定位: 由于之前裝修顏色過重太過沉悶,改造目的讓整個空間布局更合理,色調更柔和,對比更強。因此大廳位置保留原地面深顏色的地磚,通過簡單的吧臺直線造型和用材,過度和緩和下深色地磚帶來的壓迫感,直至墻面用暖色壁紙和冷暖光的搭配,來烘托整個空間的氛圍。不失棋牌的娛樂性和就餐客戶群體對就餐環境要求的穩重性和舒適性。


北京鑄誠大廈辦公裝修工程
北京銀河SOHO辦公裝修工程
301醫院裝修工程
